Étude de Cas | Ingénierie & Hydraulique

Ingénierie Hydraulique & Rénovation Haute Performance

Conception technique de précision pour une propriété de 420 m² dans le Canton de Vaud (Suisse).

Expertise Technique

Dimensionnement & Ingénierie Hydraulique

01

Calibrage du Générateur (PAC)

Calcul précis des charges thermiques selon les déperditions réelles du bâtiment pour dimensionner la PAC air/eau de manière optimale et éviter les cycles courts préjudiciables à la longévité.

02

Ingénierie des Réseaux

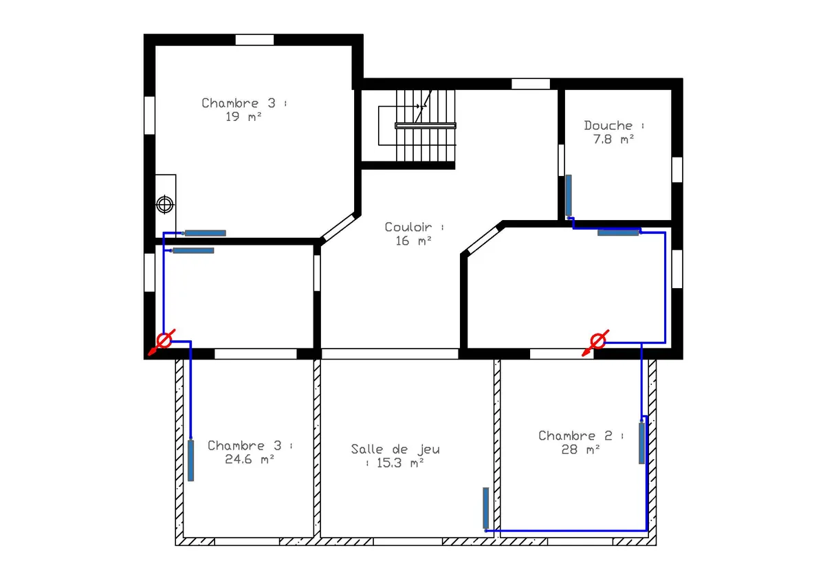
Calibrage rigoureux des diamètres de conduits et des débits pour assurer une irrigation parfaite de chaque émetteur — planchers chauffants basse température et radiateurs — sur l'ensemble des niveaux.

03

Équilibrage Hydraulique

Étude complète des pertes de charge dans chaque boucle du circuit pour garantir un débit équilibré et un confort thermique strictement identique dans chaque pièce, indépendamment de son éloignement.


Plans d'Exécution & Modélisation

Précision CAO & BIM

Sur une surface de 420 m² répartis sur plusieurs niveaux, chaque détail de mise en œuvre conditionne la performance finale du système. Nous avons mobilisé les outils de référence de l'ingénierie pour garantir une coordination parfaite entre tous les corps d'état.

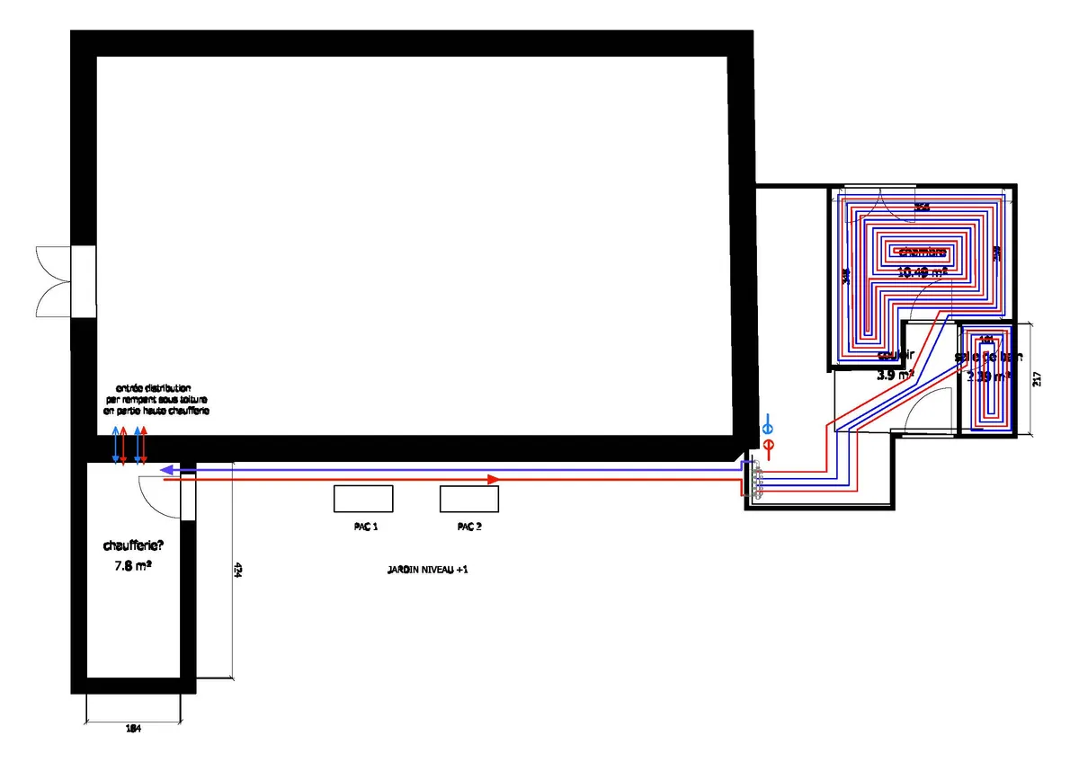
La liasse documentaire produite comprend les plans de principe hydrauliques, les schémas de régulation, les plans de réservation et la maquette numérique de la chaufferie en modélisation BIM — permettant une visualisation tridimensionnelle avant tout percement.

AutoCAD

Plans 2D d'exécution

Revit · BIM

Modélisation 3D chaufferie

PLAN D'EXÉCUTION · CAO/BIM
Plan RDC Plan RDC+1 Plan Sous-sol Détail Plancher
Plan supplémentaire

Indicateurs Clés

Une performance de précision

420

Surface traitée en thermique exhaustive

G→B

Saut de classe DPE projeté par l'audit

2

Outils CAO/BIM mobilisés

3

Niveaux hydrauliquement équilibrés

Calcul des charges thermiques selon méthode réglementaire
Équilibrage hydraulique de chaque boucle de circuit
Plans d'exécution AutoCAD livrés pour les installateurs
Maquette BIM Revit de la chaufferie en 3D
Coordination inter-corps d'état garantie par le BIM
Gain énergétique projeté
~80%

Résultat de la combinaison entre le surdimensionnement évité, l'équilibrage hydraulique de précision et la sélection optimale des émetteurs.